Dự án The Global City quận 2 do Masterise Homes hợp tác với Foser + Parter triển khai. Dự án tọa lạc tại mặt tiền đường Đỗ Xuân Hợp, Thành phố Thủ Đức. Khu đô thị Global City có quy mô hơn 117 ha với đầy đủ các loại hình từ căn hộ, nhà phố, biệt thự, … cùng với các tiện ích vui chơi, giải trí hàng đầu của Thủ Đức như khách sạn 5 sao, khu mua sắm, thương mại, quốc tế, bệnh viện, trường học quốc tế và các dịch vụ cao cấp khác. The Global City là dự án khu đô thị phức hợp hiện đại, có sân golf tiêu chuẩn quốc tế. Với vị trí nằm ngay mặt tiền đại lộ trung tâm Thủ Đức, đồng thời liền kề khu thể thao thủ đô do chủ đầu tư Singapore đầu tư ngay bên cạnh, Sài Gòn Bình An được kỳ vọng sẽ là mảnh ghép hoàn hảo. Hoàn thiện tạo nên khu đô thị thể thao hàng đầu, hạt nhân kinh tế mới của khu Đông Sài Gòn.

Xem thêm dự án khác tại quận 2: Datxanhhomes Riverside

Dự án khu đô thị The Global City quận 2 chủ đầu tư Masterise Homes

Tổng quan dự án khu đô thị The Global City Masterise Homes

Tên dự án: The Global City
Tên cũ: Sài Gòn Bình An
Loại hình: nhà phố – biệt thự, căn hộ, thương mại
Vị trí: mặt tiền đường Đỗ Xuân Hợp, Phường An Phú, quận 2, TP Thủ Đức
Chủ đầu tư: Masterise Homes
Đơn vị xây dựng: An Phong Cons
Đơn vị thiết kế: Foster and + Partner (Anh)
Quy mô:  117.4ha
Tiên ích: Hồ bơi tràn bờ, hồ cảnh quan, trung tâm thương mại, công viên 5000m², nhà hàng 5 sao, khách sạn quốc tế.
Pháp lý: đã có GPXD (số 155/GPXD ngày 18/12/2020)
Hình thức sở hữu: Người Việt Nam sở hữu lâu dài – Người nước ngoài sở hữu 50 năm

Vị trí dự án khu đô thị The Global City Masterise Homes

Dự án The Global City quận 2 tọa lạc trên mặt tiền đường Đỗ Xuân Hợp, thành phố Thủ Đức. Global City – Sài Gòn Bình An có vị trí ngay trung tâm phường An Phú với vị trí đặc biệt đắc địa của Sài Gòn Bình An vì có 2 mặt tiền giáp 2 trục đường quan trọng nhất khu Đông Sài Gòn. Cụ thể, có mặt tiền tiếp giáp với đường cao tốc TP.HCM – Long Thành – Dầu Giây, tuyến đường huyết mạch kết nối giao thông với các tỉnh thành lân cận.

Mặt tiền phía Đông của dự án tiếp giáp với đường Đỗ Xuân Hợp, trục đường huyết mạch nối qua thành phố mới Thủ Đức (quận 9 cũ). Đặc biệt, dự án có một mặt tiền giáp sông Rạch Chiếc và một mặt giáp khu đô thị thể thao Saigon Sports City (quy mô64ha) của chủ đầu tư Keppelland. Nằm cạnh Sài Gòn Bình An Sport City, Sài Gòn Bình An được nâng cấp trở thành khu đô thị thể thao phức hợp hạng nhất khu vực.

Ngoài ra, Sài Gòn Bình An còn liền kề khu tái định cư 15ha và dễ dàng di chuyển đến khu đô thị Thủ Thiêm, Q. Bình Thạnh, và các quận trung tâm Sài Gòn thông qua các tuyến đường cao tốc. Mai Chí Thọ, Xa lộ Hà Nội, hầm Thủ Thiêm, …

Vị trí dự án khu đô thị The Global City quận 2 chủ đầu tư Masterise Homes

Đánh giá tiềm năng khu đô thị Nam Rạch Chiếc

Giai đoạn đến năm 2030, khu Đông Sài Gòn tiếp tục dẫn đầu thị trường vốn đầu tư Tp.HCM với quy mô đầu tư lên đến 852.500 tỷ đồng. Các công trình trọng điểm được ưu tiên phát triển và đưa vào sử dụng. Nổi bật là nâng cấp đường cao tốc TP.HCM – Long Thành – Giàu Giàu lên 8 làn xe, mở rộng đường Đỗ Xuân Hợp, Lê Văn Việt, Lã Xuân Oai với lộ giới lên đến 60m. Đường Nguyễn Duy Trinh cũng được cải tạo, đảm bảo giao thông khu vực Mai Chí Thọ và Đồng Văn Cống, nâng cấp nút giao An Phú, nút giao Mỹ Thủy, đường vành đai 3, xây dựng cầu Cát Lái

Đồng thời, TP.Thủ Đức cũng đẩy nhanh tiến độ thi công các công trình hạ tầng kỹ thuật, chống ngập, thoát nước, bộ máy hành chính, bệnh viện, chống sạt lở, nạo vét… để nâng cao chất lượng. Họ cũng sống và nâng cao mỹ quan đô thị. Sắp tới đây, tuyến Metro số 1 Bến Thành – Suối Tiên sắp hoàn thành cũng là động lực không nhỏ trong việc thúc đẩy phát triển kinh tế của khu vực.

Tiện ích dự án khu đô thị The Global City quận 2

Tiện ích nội khu dự án căn hộ TheGlobal City Quận 2 Thủ Đức nổi bật trong khu vực với sân Golf 18 lỗ tiêu chuẩn quốc tế, quy mô mặt bằng lên đến 92ha. Đây được kỳ vọng là một trong những sân golf sang trọng nhất TP. Thủ Đức cũng như Thành phố Hồ Chí Minh và là nơi quy tụ của các sự kiện, giải đấu chuyên nghiệp trong khu vực.

Tích hợp trong lõi bên trong của khu đô thị hạt nhân là chuỗi tiện ích đầy đủ không chỉ phục vụ trọn vẹn nhu cầu sinh hoạt của cư dân mà còn mở rộng và nâng tầm chất lượng trải nghiệm xứng tầm du lịch, nghỉ dưỡng. Theo đó, dự án thiết kế hạng mục tiện ích đẳng cấp trên sông Rạch Chiếc, trung tâm thương mại với hàng trăm thương hiệu mua sắm sang trọng, sầm uất, công viên cảnh quan, hồ bơi, khu luyện tập thể thao.

Dự án tọa lạc tại trung tâm phường An Phú cũng như thành phố Thủ Đức, trong bán kính 3km từ Sài Gòn Bình An, kết nối dễ dàng và thuận tiện với chợ Thạnh Mỹ Lợi, chợ Cát Lái, chợ Cây Xoài, BV Đa Khoa Quận 2, các hệ thống trường học công lập các cấp, siêu thị, đại siêu thị.
The Global City Thủ Đức còn được hưởng lợi từ các tiện ích nội khu hiện đại của các khu đô thị như Saigon Sport City, Villa Park, khu đô thị Cát Lái (Kiến Á), …

Tiện ích Sân chơi trẻ em The Global City

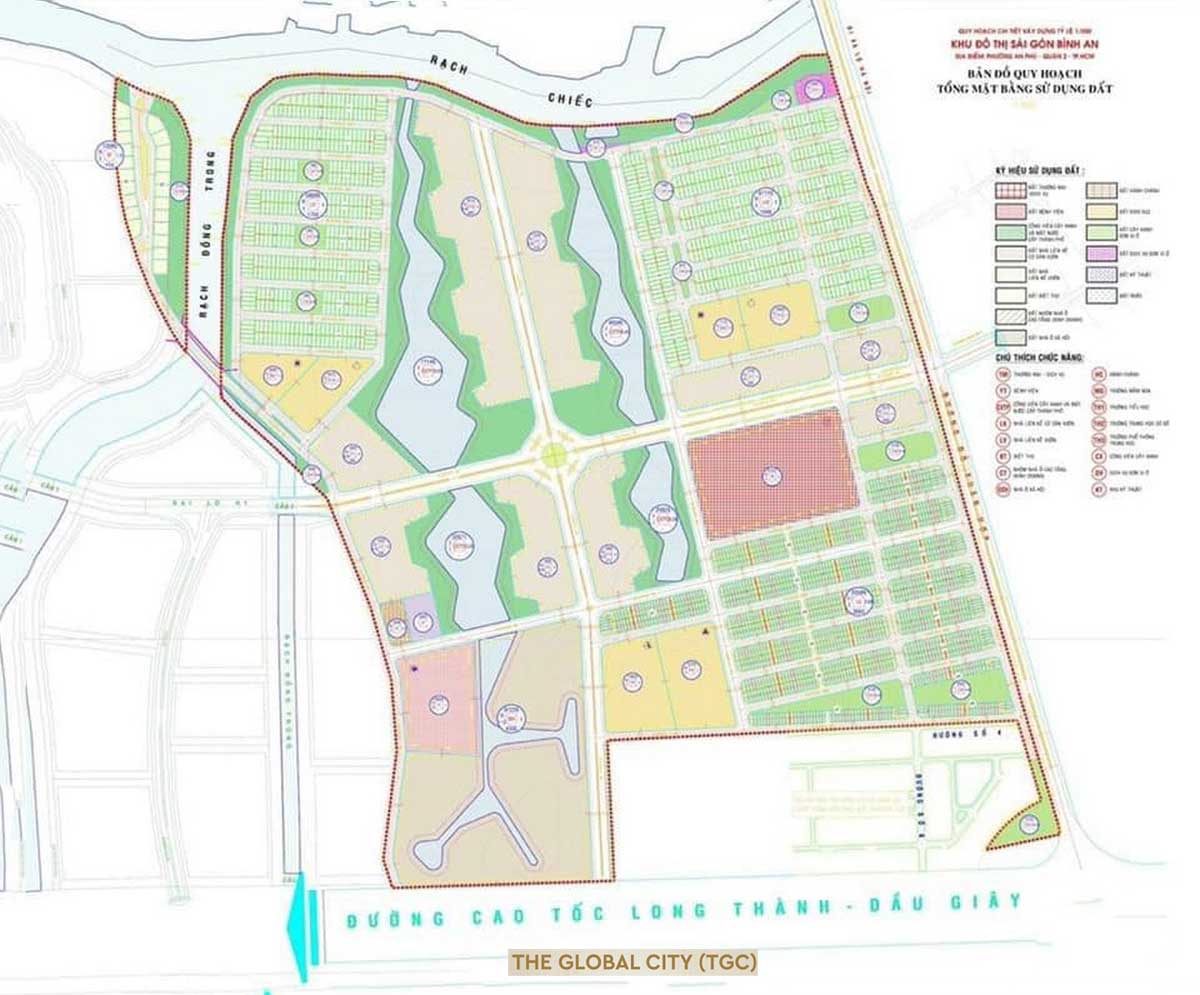
Mặt bằng tổng thể khu đô thị The Global City Masterise Homes

Dự án khu đô thị The Global City quận 2 có nhiều loại hình từ nhà phố, biệt thự, hay cao tầng. Đối với nhà phố sẽ có các mô hình gồm nhà phố liên kế vườn và nhà phố liên kế, căn hộ thông tầng có thiết kế từ 1 đến 5 phòng ngủ, trong đó có loại căn hộ Duplex và Penthouse đẳng cấp nhất của dự án. Theo đó, chung cư cao tầng dự kiến có 20 tòa tháp, quy mô hơn 10.000 căn hộ 1, 2, 3, 4 phòng ngủ có diện tích từ 50-150m2. Khu nhà phố có khoảng 2000 căn, thiết kế 4 tầng, chiều ngang tiêu chuẩn 5-5,3m và dài 18-22m, bao gồm chức năng ở và thương mại, tất cả đều có tầng hầm và sân vườn phía sau.

Mặt bằng tổng thể dự án khu đô thị The Global City quận 2 chủ đầu tư Masterise Homes

Rate this du-an
All in one